- Din cauza unui singur echipament, puterea instalată este mai mică decât Expert Lift.
- Permite producerea fără a necesita intervenția operatorului.
- Greble suportate pentru descărcare fără zgârieturi.
- Este mai potrivit pentru un singur echipament.
- Înălțimea sistemului este mai mică decât Expert Lift. Oferă mai puțin spațiu în volum pentru locul clienților.
- Aspiratoarele și greblele sunt combinate pe aceeași unitate. Oferă un consum mai mic de energie electrică.
- Prezintă diferite planuri.
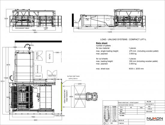
SPECIFICATII ECHIPAMENT
| SPECIFICATII TEHNICE | ||
|
Pentru utilaje NUKON
|
315 | 420 |
| Lungimea foaiei disponibile |
3000 mm
|
4000 mm |
| Lățimea foii disponibile | 1500 mm | 2000 mm |
| Dimensiunea minimă a foii pentru încărcare-descărcare | 750 x 750 mm | 750 x 750 mm |
| Capacitatea de încărcare a paletului de încărcare | 3000 kg | 3000 kg |
| Grosimea foii Min-Max | 0,5-25 mm | 0,5-20 mm |
| Greutatea maximă a foii | 900 kg | 1200 kg |
| Cantitatea de vid | ø 160 / 16 pcs. | ø 160 / 20 pcs. |
| Viteza maximă de deplasare orizontală | 12 m/min | 12 m/min |
| Viteza de deplasare a autoturismelor | 12 m/min | 12 m/min |
MACHINE SPECIFICATIONS
| PARAMETRI DE TĂIERE | |||||||||||
|---|---|---|---|---|---|---|---|---|---|---|---|
| Rezonator | 4 kW | 4 kW CutLine |
6 kW | 6 kW CutLine |
8 kW | 8 kW CutLine |
10kW | 10kW CutLine |
12kW | 12kW CutLine |
|
| Maximum Capacitate de tăiere |
Oțel moale | 20mm | 20mm | 20mm | 25mm | 20mm | 30mm | 25mm | 30mm | 25mm | 30mm |
| Inoxidabil | 12mm | 15 mm | 20mm | 25mm | 30mm | 30mm | 30mm | 30mm | 30mm | 30mm | |
| Aluminiu | 10mm | 15 mm | 20mm | 25mm | 30mm | 30mm | 30mm | 30mm | 30mm | 30mm | |
| Alamă | 6mm | 8 mm | 12mm | 15mm | 15mm | 15mm | 20mm | 20mm | 20mm | 20mm | |
| Cupru | 6mm | 8mm | 12mm | 15mm | 15mm | 15mm | 15mm | 15mm | 15mm | 15mm | |
| P 380V/3PH ±%5 | 42 kVA | 52 kVA | 72 kVA | 88 kVA | 88 kVA | ||||||













